Технические характеристики

Номинальный диаметр DN: 300;400;500;600;700;800;900;1000;1200;1400
Материал уплотнения: EPDM
Номинальное давление PN: 2,5;10;16
Класс герметичности по ГОСТ 9544-2015: C;D
Тип присоединения: фланцевый;приварной
Тип подачи рабочей среды: односторонний
Материал корпуса: ст.20;ст.09Г2С;коррозионностойкая сталь
Управление: автоматическое
Материал запорного органа: ст.20;ст.09Г2С;коррозионностойкая сталь
Рабочая среда: вода

Габаритные размеры

НаименованиеPN, МПаDLH
КОП.900-12001,0170020702250

Рабочее гидравлическое давление, МПа

1

Пробное гидравлическое давление, МПа

1,5

Условный диаметр подводящего трубопровода, мм

900

Условный диаметр отводящего трубопровода, мм

1200

Потери напора на открывание клапана не более, МПа

0,012

Время срабатывания, с, не более

2,0

*Время срабатывания клапана указано при минимальном давлении. Фактическое время срабатывания зависит от величины рабочего давления и определяется при испытаниях системы.

Схема  клапана

900-1200_1

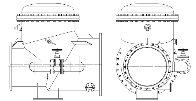
Особенности конструкции

Клапан обратный однодисковый поворотный с условным проходом DN900, предназначен для пропускания жидкости только в одном направлении и предупреждает обратное течение.

Клапан обратный производства ООО «Газгидроснаб»  выполнен в сварном корпусе. В стандартном исполнении корпус клапана сварной выполнен из углеродистой стали с фланцевым присоединением. Диск изготавливается из углеродистой стали  с  износостойкой нержавеющей наплавкой в зоне уплотнения. Седло составное, с болтовым соединением, изготовлено из нержавеющей стали со встроенным сменным резиновым элементом. Болты соединения деталей седла из нержавеющей стали.

Угол положения диска относительно оси трубопровода определяется по шкале со стрелочным указателем.

Открывание клапана происходит за счет давления среды на диск при включении насоса.

Под действием скоростного потока среды диск клапана устанавливается под углом  к оси трубопровода. При остановке насоса диск под действием собственного и веса противовеса начинает закрываться.

w256h2561380453900FileDocument256x25632клапана 010

w256h2561380453900FileDocument256x25632клапана 032

w256h2561380453900FileDocument256x25632Опросный лист Клапан ГГС